Overview
MLS® Number: A2295227
Type: Residential Land
Lot Size: 10,441 Square Feet
Community: Montgomery
Description

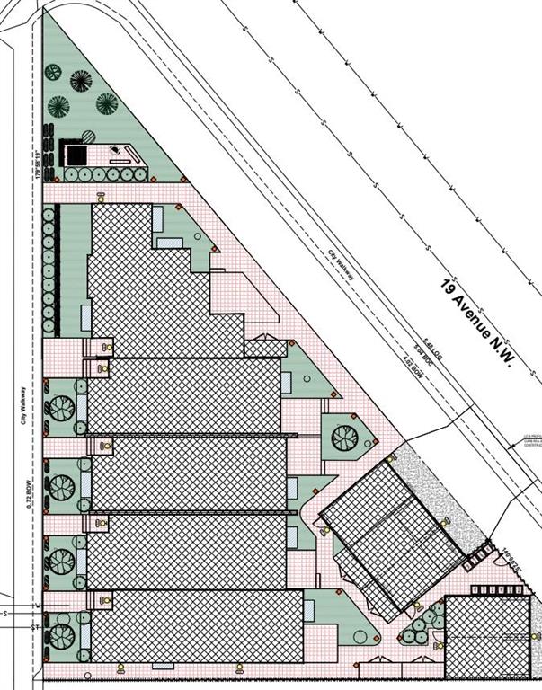
OVER 10,000 SQFT LOT! DP IN PLACE!! READY TO BUILD! Exceptional development opportunity in the heart of Montgomery! Situated on a massive corner lot, this property comes with development permits already in place for five executive townhomes, each featuring its own legal suite, plus a total of 5 garages. With professionally designed plans by one of Calgary’s top designers, this is a turnkey, ready-to-break-ground project—and not your typical small-scale townhome development. The thoughtfully designed site also includes ample green space for residents, enhancing livability and long-term appeal. Ideally located close to numerous amenities, public transit, the University of Calgary, and the Foothills Hospital, this site also offers quick access to major roadways and an easy escape to the mountains. Montgomery continues to be one of Calgary’s most sought-after inner-city communities, making this an excellent opportunity for builders and investors alike. Perfect for rental income, MLI select, or resale, this is a rare chance to secure a premium development on a standout lot in a prime location.

Seller Brokerage: The Real Estate District

Property Details
Interior
InclusionsN/A
Exterior & Lot
FencingNone
Lot FeaturesBack Lane
Financial & Legal
Annual Tax$5,122 (2025)
PossessionImmediate,Negotiable
ZoningR-CG
TitleFee Simple
Mortgage Calculator
Location
1928 Home Road NW, Montgomery, Calgary, AB
Get Directions
Neighbourhood Demographics
Statistics Canada 2021 Census · Dissemination Area
$42,400
Median household income
36.4
Median age
2.40
Avg household size
Tenure — 65.20% Own  ·  34.80% Rent
How people get to work
Drive 42.90% 🚌 Transit 9.50% 🚶 Walk/Bike 6.30% 🏠 WFH 41.30%
Education — 46.50% have a bachelor's degree or higher
Community Statistics
Calgary Police Service · City of Calgary Open Data

Annual disorder incidents reported in Montgomery. Disorder includes noise complaints, suspicious persons, public disturbances, and similar matters.

2020 858 incidents
2021 779 incidents
2022 549 incidents
2023 513 incidents
2024 436 incidents
▼ 15% fewer incidents in 2024 vs the prior year.
Contact Agent
Robb Leece, REALTOR®
Robb Leece, REALTOR®
Graham Realty Inc. 403-478-4335 robbleece@gmail.com
Call 403-478-4335
Unlock More Data

Sign up free to see sold prices, days on market, price history and set listing alerts.

Get Free Access
Search Listings

About Montgomery

Full community profile
Montgomery is one of Calgary's most prestigious inner-city neighbourhoods, perched on a bluff overlooking the Bow River with stunning downtown skyline views. This exclusive hillside community combines historic charm with luxury living, featuring elegant heritage homes and upscale modern residences on tree-lined streets.

AI-generated overview. Verify details independently.

Similar Properties in Montgomery

4503 Bowness Road NW
For Sale
Detached

$1,069,900

4503 Bowness Road NW

Montgomery, Calgary

  • 3 Beds
  • 1 Baths
  • 666 sq. ft.
4512 21 Avenue NW
For Sale
Detached

$1,395,000

4512 21 Avenue NW

Montgomery, Calgary

  • 6 Beds
  • 3/1 Baths
  • 2,430 sq. ft.
4-4411 17 Avenue NW
For Sale
Row/Townhouse

$625,000

4-4411 17 Avenue NW

Montgomery, Calgary

  • 3 Beds
  • 3/1 Baths
  • 1,449 sq. ft.
2025 Home Road NW
For Sale
Row/Townhouse

$4,000,000

2025 Home Road NW

Montgomery, Calgary

  • 10,749 sq. ft.
4804 21 Avenue NW
For Sale
Semi Detached (Half Duplex)

$849,900

4804 21 Avenue NW

Montgomery, Calgary

  • 4 Beds
  • 3/1 Baths
  • 1,956 sq. ft.
5212 22 Avenue NW
For Sale
Detached

$800,000

5212 22 Avenue NW

Montgomery, Calgary

  • 1 Beds
  • 1 Baths
  • 601 sq. ft.