Overview
MLS® Number: A2289373
Type: Semi Detached (Half Duplex)
Bedrooms: 5
Bathrooms: 4.0
Lot Size: 3,121 Square Feet
Year Built: 2007
Description

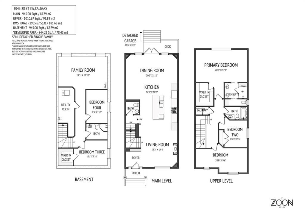
OPEN HOUSE SUNDAY 11:30 TO 2PM. Ideally located in the heart of Killarney, this beautifully maintained custom-built home combines thoughtful design with a warm and inviting atmosphere. With a desirable west-facing backyard, you’ll enjoy afternoon sunshine and long summer evenings on the spacious two-tier deck. This two storey home has over 2800 square feet of developed space. Step inside and you’re welcomed by beautifully refinished hardwood floors and a bright, open main floor designed for everyday living and entertaining. The layout flows effortlessly from the sitting area into the kitchen, dining space, and comfortable living room. At the heart of the home is the gourmet kitchen, featuring quartz countertops, a large island with stylish new pendant lighting, abundant cabinetry, stainless steel appliances including a gas range and new dishwasher, pantry storage, and under-cabinet lighting. The adjacent sitting area offers plenty of space to relax, highlighted by a cozy gas fireplace. The dining and living areas open through west-facing double doors to the sunny backyard and two-tier deck, creating the perfect indoor-outdoor connection. The yard is complemented by a detached double garage. In 2025 the back lane was paved. Upstairs, you’ll find two generous bedrooms and a versatile loft that can easily be converted into a third upper bedroom if desired. The spacious primary suite includes a walk-in closet and a well-appointed ensuite with double sinks and a large steam shower. The fully developed lower level offers excellent flexibility with a large recreation room currently used as a gym, a full bathroom, and another bedroom with a walk-in closet. All doors in the home are solid core. The dedicated bike room could also be converted into a fourth bedroom if needed. Recent upgrades provide peace of mind, including new roof shingles with additional venting, a new garage door, a high-efficiency furnace, and an on-demand hot water system. Both the furnace and hot water system come with a five-year warranty. Additional features include a new water softener and a convenient outdoor hot water tap. All of this in a fantastic location close to transit, shopping, restaurants, and everyday amenities, making it easy to enjoy everything Killarney has to offer.

Seller Brokerage: Real Broker

Property Details
Size & Rooms
Below Grade945 sq. ft.
Main Level945 sq. ft.
Upper Level1,011 sq. ft.
Rooms Above Grade7
Beds Above Grade3
Beds Below Grade2
Bathrooms
5-Piece Ensuite1
4-Piece1
3-Piece1
2-Piece1
EnsuiteYes
Construction
Style2 Storey,Attached-Side by Side
Exterior MaterialStone,Stucco,Wood Frame
RoofAsphalt Shingle
FoundationPoured Concrete
New ConstructionNo
Parking & Garage
Garage Stalls2
Total Parking2
FeaturesDouble Garage Detached
Basement
TypeFull
DevelopmentFinished
FeaturesNone
Interior
HeatingForced Air
CoolingNone
Fireplaces1 — Gas
FlooringCarpet,Ceramic Tile,Hardwood
LaundryIn Hall,Other
FeaturesCeiling Fan(s),Double Vanity,Kitchen Island,Open Floorplan,Pantry,Quartz Counters,Walk-In Closet(s)
AppliancesDishwasher,Gas Stove,Refrigerator,Washer/Dryer Stacked
Inclusionsnone
Exterior & Lot
ExteriorBBQ gas line,Private Yard
FencingFenced
Patio / PorchDeck,Porch,See Remarks
Lot FeaturesFew Trees
Frontage24.94 ft.
CommunityPark,Playground,Schools Nearby,Shopping Nearby,Sidewalks,Street Lights
Financial & Legal
Annual Tax$4,931 (2025)
Possession45 days / Neg
List Date2026-03-05
ZoningDC (pre 1P2007)
TitleFee Simple
Mortgage Calculator
Location
3043 28 Street SW, Killarney/Glengarry, Calgary, AB
Get Directions
Contact Agent
Robb Leece, REALTOR®
Robb Leece, REALTOR®
Graham Realty Inc. 403-478-4335 robbleece@gmail.com
Call 403-478-4335
Unlock More Data

Sign up free to see sold prices, days on market, price history and set listing alerts.

Get Free Access
Search Listings

Similar Properties in Killarney/Glengarry

2823 29 Street SW
For Sale
Semi Detached (Half Duplex)

$1,150,000

2823 29 Street SW

Killarney/Glengarry, Calgary

  • 5 Beds
  • 3.0 Baths
2620 30 Street SW
For Sale
Semi Detached (Half Duplex)

$1,350,000

2620 30 Street SW

Killarney/Glengarry, Calgary

  • 5 Beds
  • 4.0 Baths
303-1915 26 Street SW
For Sale
Apartment

$204,900

303-1915 26 Street SW

Killarney/Glengarry, Calgary

  • 2 Beds
  • 1.0 Baths
2208 31 Street SW
For Sale
Detached

$1,150,000

2208 31 Street SW

Killarney/Glengarry, Calgary

  • 5 Beds
  • 2.0 Baths
2-2207 28 Street SW
For Sale
Row/Townhouse

$375,000

2-2207 28 Street SW

Killarney/Glengarry, Calgary

  • 3 Beds
  • 2.0 Baths
3452 37 Street SW
For Sale
Detached

$735,000

3452 37 Street SW

Killarney/Glengarry, Calgary

  • 3 Beds
  • 1.0 Baths