Overview
MLS® Number: A2282431
Type: Detached
Bedrooms: 6
Bathrooms: 6.0
Lot Size: 5,060 Square Feet
Year Built: 2026
Description

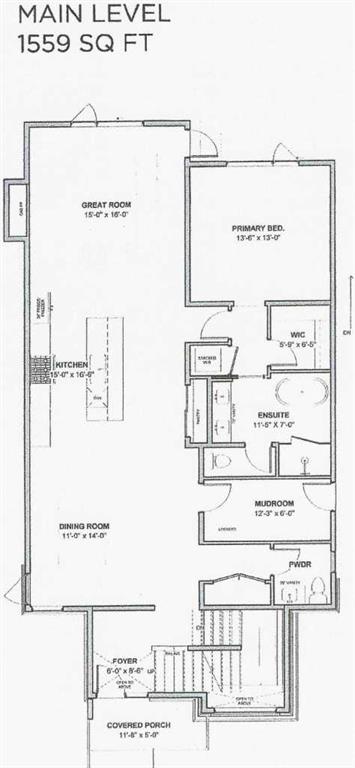
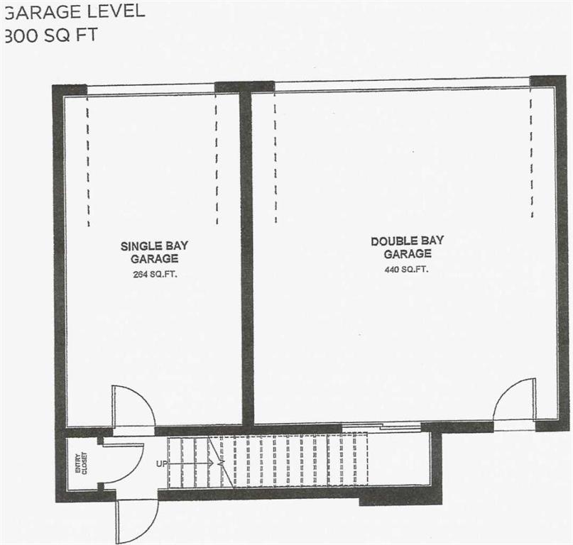
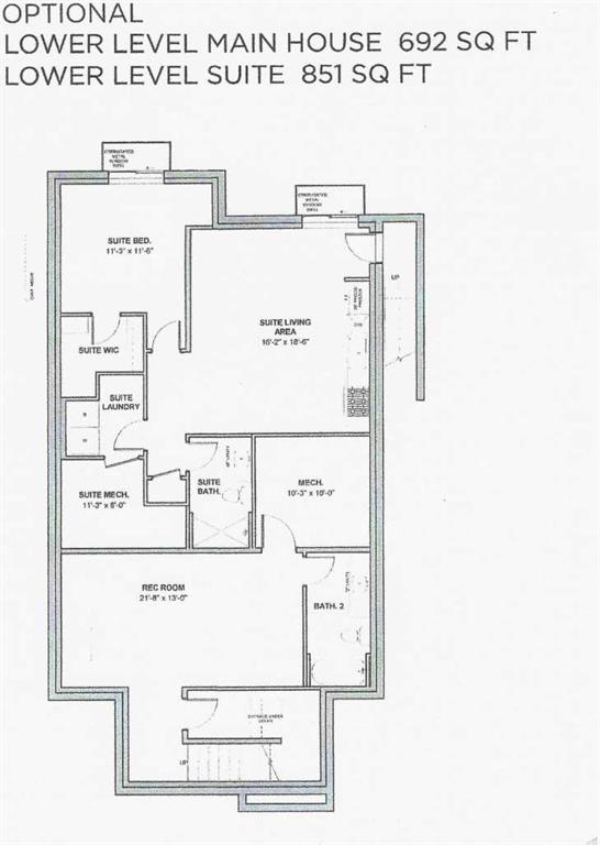
MULTI-GENERATIONAL LIVING/INCOME POTENTIAL! The Nolita II offers 2,637ft2 of well-appointed living space. The main floor features a master bedroom with ensuite, an open concept living area that includes a great room, kitchen, and living room, as well as a generous mudroom. The upper floor includes two additional bedrooms, the main bath, and a spacious bonus room. The fully developed basement of this home includes a finished recreation room and full bathroom for the main house plus a complete 1-bedroom legal suite with a separate entrance. The property also includes a detached triple garage with a 2-bedroom fully finished garden suite above. (legal Suites can be redesigned to make the home 'single-family' living.) As a Custom Concepts’ Personalized Home this home offers the perfect balance of convenience and customization, allowing you to jump-start the build process by approximately six months. The initial design, permitting, foundation, and framing are already completed, so you can begin personalizing at the rough-in stage. If you're looking for a quicker build process and a faster move-in date with the added benefit of tailoring your home to your design preferences, our Personalized Homes might be the perfect choice for you. Upper Greenwich is a distinctive community nestled on the west edge of Calgary – an easy commute to downtown with quick access to the Rocky Mountains. Upper Greenwich is a lovely blend of sophisticated urban living in natural surroundings. Walking paths, sport courts, playgrounds and abundant greenspaces can be enjoyed right outside your front door. The HOA ensures upkeep of the amenities of the community and helps bring people together with seasonal celebrations and neighborhood events. Upper Greenwich is a community that is connected, active and thriving!

Listing Brokerage: RE/MAX House of Real Estate

Property Details
Heating
High Efficiency,Fireplace(s)
Cooling
None
Flooring
Carpet,Ceramic Tile,Hardwood
Parking
Alley Access,Concrete Driveway,Garage Door Opener,Insulated,Triple Garage Detached
Appliances
Built-In Oven,Dishwasher,Electric Range,ENERGY STAR Qualified Dishwasher,ENERGY STAR Qualified Refrigerator,Gas Cooktop,Microwave,Microwave Hood Fan,Range Hood,Refrigerator,Washer/Dryer Stacked,Water Conditioner
Fireplace
1 fireplace
Laundry
Lower Level,Main Level
Zoning
DC
Mortgage Calculator
Location
131 Greenwich Heath NW, Greenwood/Greenbriar, Calgary, AB
Get Directions
Contact Agent
Robb Leece, REALTOR®
Robb Leece, REALTOR®
Graham Realty Inc. 403-478-4335 robbleece@gmail.com
Call 403-478-4335
Unlock More Data

Sign up free to see sold prices, days on market, price history and set listing alerts.

Get Free Access
Search Listings

Similar Properties in Greenwood/Greenbriar

213 Greenbriar Common NW
For Sale
Row/Townhouse

$609,000

213 Greenbriar Common NW

Greenwood/Greenbriar, Calgary

  • 3 Beds
  • 4.0 Baths
207-3223 83 Street NW
For Sale
Mobile

$89,900

207-3223 83 Street NW

Greenwood/Greenbriar, Calgary

  • 3 Beds
  • 2.0 Baths
1402-80 Greenbriar Place NW
For Sale
Apartment

$454,900

1402-80 Greenbriar Place NW

Greenwood/Greenbriar, Calgary

  • 2 Beds
  • 2.0 Baths
2410-80 Greenbriar Place NW
For Sale
Apartment

$323,900

2410-80 Greenbriar Place NW

Greenwood/Greenbriar, Calgary

  • 1 Beds
  • 1.0 Baths
22 Greenwich Row NW
For Sale
Detached

$1,359,900

22 Greenwich Row NW

Greenwood/Greenbriar, Calgary

  • 5 Beds
  • 4.0 Baths
3103-80 Greenbriar Place NW
For Sale
Apartment

$429,999

3103-80 Greenbriar Place NW

Greenwood/Greenbriar, Calgary

  • 2 Beds
  • 2.0 Baths