Overview
MLS® Number: A2281507
Type: Detached
Bedrooms: 4
Bathrooms: 4.0
Lot Size: 5,285 Square Feet
Year Built: 1988
Community: Woodbine
Description

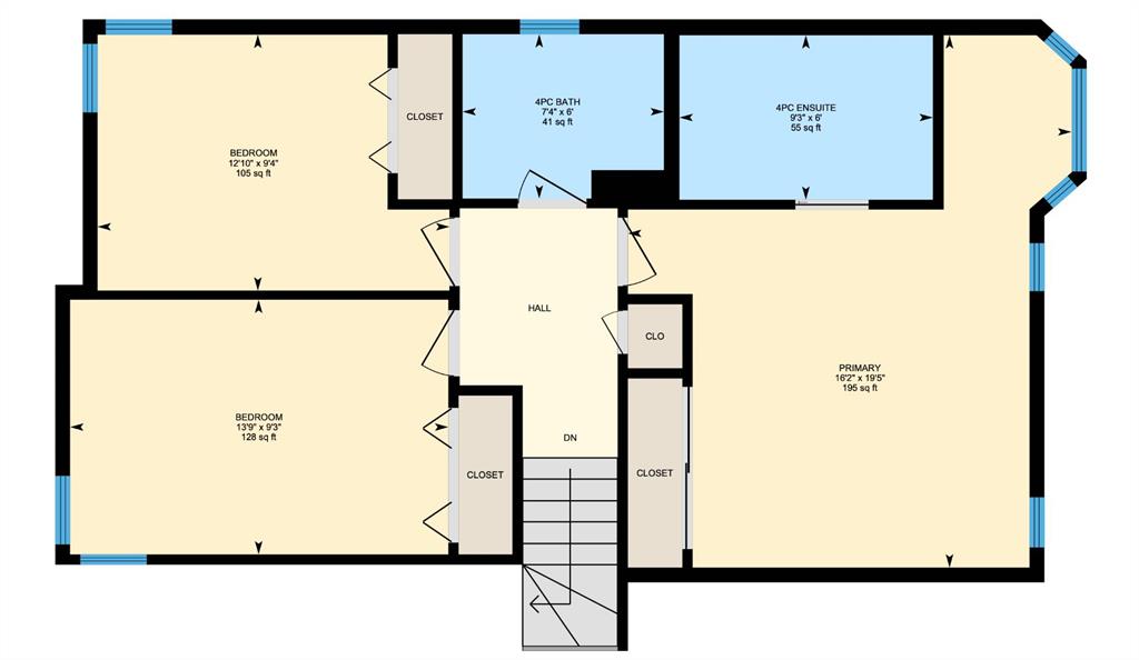
Welcome to this beautifully maintained two-storey home in the heart of Woodbine, offering over 3,000 sq. ft. of versatile living space and an unbeatable setting for families and nature lovers alike. Enjoy the peace of mind that comes with no sidewalk to shovel, along with the confidence of knowing major updates have already been completed. All Poly-B plumbing was fully replaced in 2025, complemented by a new dryer (2025), new range (2024), refrigerator (2022), and dishwasher (2021). Additional upgrades include new windows (2018), a new roof (2019), and a new fence (2020)—making this a truly move-in-ready property. Step inside to a bright and welcoming main living space featuring a vaulted ceiling living room filled with abundant natural light, enhancing both openness and elegance. The kitchen is well-appointed with granite countertops, stainless steel appliances, and ample cabinetry—perfect for everyday living and entertaining. The main floor offers a flexible office or bedroom, ideal for working from home, guests, or multi-generational living. The guest bathroom at the main floor is generously sized and offers the potential to be converted into a full bath, adding even more functionality and long-term value. Upstairs, you’ll find three generously sized bedrooms, including a spacious primary retreat with an upgraded spa-like ensuite featuring a large walk-in glass rain shower. Heated flooring in the upstairs bathrooms adds an extra touch of comfort and luxury. The fully finished basement provides additional versatile living space, perfect for a recreation room, home gym, office, or entertainment area. Step outside to the deck, equipped with a BBQ gas line, ideal for outdoor enjoyment. Central air conditioning ensures year-round comfort throughout the home. The location is truly exceptional. Just steps from excellent schools, playgrounds, and within walking distance to Fish Creek Park, this home offers endless opportunities for outdoor recreation. With easy access to shopping, restaurants, transit, tennis courts, Glenmore Reservoir, and Southland Leisure Centre, plus quick access to Stoney Trail and Costco, everyday living and commuting are effortless. A perfect blend of comfort, upgrades, and location—this is a home where families love to settle and stay. Please check out the 3D tour and call for a private viewing before it’s gone.

Seller Brokerage: Homecare Realty Ltd.

Property Details
Size & Rooms
Rooms Above Grade8
Beds Above Grade4
Bathrooms
4-Piece2
4-Piece Ensuite1
2-Piece1
EnsuiteYes
Construction
Style2 Storey
Exterior MaterialStucco
RoofAsphalt Shingle
FoundationPoured Concrete
New ConstructionNo
Parking & Garage
Garage Stalls2
Total Parking4
FeaturesDouble Garage Attached
Basement
TypeFull
DevelopmentFinished
FeaturesNone,Other
Interior
HeatingCentral,Fireplace(s)
CoolingCentral Air
Fireplaces2 — Gas
FlooringCarpet,Ceramic Tile,Hardwood
LaundryIn Basement,Multiple Locations
FeaturesCeiling Fan(s),Double Vanity,High Ceilings,Kitchen Island,No Animal Home,No Smoking Home,Storage,Vaulted Ceiling(s),Vinyl Windows
AppliancesCentral Air Conditioner,Dishwasher,Dryer,Electric Stove,Garage Control(s),Garburator,Refrigerator,Washer
InclusionsCentral Vacuum with attachments, Outdoor Shed,
Exterior & Lot
ExteriorBBQ gas line,Playground,Private Yard,Storage
FencingFenced
Patio / PorchDeck
Lot FeaturesLandscaped,Rectangular Lot
Frontage48 ft.
CommunityPark,Playground,Schools Nearby,Shopping Nearby,Sidewalks,Street Lights,Tennis Court(s),Walking/Bike Paths
Financial & Legal
Annual Tax$5,071 (2025)
PossessionNegotiable
List Date2026-01-27
ZoningR-CG
TitleFee Simple
RestrictionsUtility Right Of Way
Mortgage Calculator
Location
137 Woodbrook Road SW, Woodbine, Calgary, AB
Get Directions
Contact Agent
Robb Leece, REALTOR®
Robb Leece, REALTOR®
Graham Realty Inc. 403-478-4335 robbleece@gmail.com
Call 403-478-4335
Unlock More Data

Sign up free to see sold prices, days on market, price history and set listing alerts.

Get Free Access
Search Listings

Similar Properties in Woodbine

152 Wood Valley Rise SW
For Sale
Detached

$749,900

152 Wood Valley Rise SW

Woodbine, Calgary

  • 3 Beds
  • 3.0 Baths
16-64 Woodacres Crescent SW
For Sale
Row/Townhouse

$450,000

16-64 Woodacres Crescent SW

Woodbine, Calgary

  • 3 Beds
  • 3.0 Baths
4 Wood Valley Rise SW
For Sale
Detached

$899,900

4 Wood Valley Rise SW

Woodbine, Calgary

  • 4 Beds
  • 4.0 Baths
20 Woodbrook Place SW
For Sale
Detached

$699,900

20 Woodbrook Place SW

Woodbine, Calgary

  • 4 Beds
  • 3.0 Baths
132 Woodmont Terrace SW
For Sale
Row/Townhouse

$379,900

132 Woodmont Terrace SW

Woodbine, Calgary

  • 3 Beds
  • 2.0 Baths
133 Woodbrook Road SW
For Sale
Detached

$949,000

133 Woodbrook Road SW

Woodbine, Calgary

  • 6 Beds
  • 4.0 Baths