Overview
MLS® Number: A2286609
Type: Detached
Bedrooms: 4
Bathrooms: 3/1
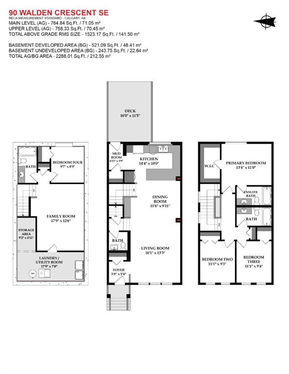
Living Area: 1,523 sq. ft.
Lot Size: 3,078 Square Feet
Year Built: 2012
Community: Walden
Description

** OPEN HOUSE SUN 2-4 PM ** CHECK THIS ONE OUT! | JAYMAN BUILT | 4 BEDROOMS | FINISHED BASEMENT | 3.5 BATHS | AIR CONDITIONED | 2288+ SQ FT OF LIVING SPACE This best-selling model, custom-built by the original owners, offers timeless style, modern upgrades, and a highly functional layout for today’s busy families. Set on a traditional lot (not zero-lot line) on a family-friendly street just steps from ponds, parks, an ice rink, pathways, schools, and shopping, this home delivers both comfort and convenience. The open-concept main floor features 9-ft ceilings, luxury hardwood flooring, and abundant natural light. A chef’s kitchen anchors the space, featuring ample counter space, shaker-style maple cabinetry with wine shelving, extended trim, stainless steel appliances (New Fridge), including an electric cooktop, recessed lighting, a large peninsula island with a flush eating bar, a mudroom pantry, and a spacious dining area. The layout also includes a main-floor family room with west-facing, extra-tall windows. A rear mudroom provides storage and direct access to the oversized, east-facing, fenced yard, two parking stalls, a paved back lane, 2 sheds, and a 16 x 11 deck. Upstairs, the luxurious primary suite offers a full 4-piece ensuite and a massive walk-in closet. Two additional bedrooms, a full bathroom, and a convenient linen closet complete this level. The professionally finished basement provides additional living space with a large family room, a 4th bedroom, a full bathroom, storage, and a full-sized laundry room. Additional highlights include: • Central A/C • Designer lighting, upgraded plumbing fixtures & electrical finishes • Generously sized bedrooms with large windows for natural light With a quick April 2026 possession date, this home is move-in ready and checks all the boxes for families, professionals, or investors alike. Don’t miss out—call your friendly REALTOR® today to book your private showing!

Seller Brokerage: Jayman Realty Inc.

Property Details
Size & Rooms
Below Grade521 sq. ft.
Main Level765 sq. ft.
Upper Level758 sq. ft.
Rooms Above Grade7
Beds Above Grade3
Beds Below Grade1
Bathrooms
4-Piece2
4-Piece Ensuite1
2-Piece1
EnsuiteYes
Construction
Style2 Storey
Exterior MaterialVinyl Siding,Wood Frame
RoofAsphalt Shingle
FoundationPoured Concrete
New ConstructionNo
Parking & Garage
Total Parking2
FeaturesAlley Access,Stall
Basement
TypeFull
DevelopmentFinished
FeaturesOther
Interior
HeatingCentral,High Efficiency,Exhaust Fan,Forced Air,Natural Gas
CoolingCentral Air
FlooringCarpet,Ceramic Tile,Hardwood
LaundryIn Basement,Laundry Room
FeaturesChandelier,Closet Organizers,High Ceilings,Kitchen Island,Laminate Counters,Open Floorplan,Pantry,Recessed Lighting,Soaking Tub,Storage,Vinyl Windows,Walk-In Closet(s)
AppliancesCentral Air Conditioner,Dishwasher,Electric Cooktop,Microwave,Range Hood,Refrigerator,Washer/Dryer
InclusionsShed x2, Gazebo, mounts for TV's
Exterior & Lot
ExteriorLighting,Private Yard,Rain Gutters,Storage
FencingFenced
Patio / PorchDeck,Front Porch,Pergola
Lot FeaturesBack Lane,Back Yard,Front Yard,Interior Lot,Landscaped,Rectangular Lot,Street Lighting
Frontage25.82 ft.
CommunityPark,Playground,Pool,Schools Nearby,Shopping Nearby,Sidewalks,Street Lights
Financial & Legal
Annual Tax$3,726 (2025)
PossessionImmediate
ZoningR-G
TitleFee Simple
RestrictionsEasement Registered On Title,Restrictive Covenant-Building Design/Size
Mortgage Calculator
Location
90 Walden Crescent SE, Walden, Calgary, AB
Get Directions
Neighbourhood Demographics
Statistics Canada 2021 Census · Dissemination Area
$51,600
Median household income
34.8
Median age
2.90
Avg household size
Tenure — 79.60% Own  ·  20.40% Rent
How people get to work
Drive 66.60% 🚌 Transit 4.60% 🚶 Walk/Bike 1.00% 🏠 WFH 27.80%
Education — 36.70% have a bachelor's degree or higher
Community Statistics
Calgary Police Service · City of Calgary Open Data

Annual disorder incidents reported in Walden. Disorder includes noise complaints, suspicious persons, public disturbances, and similar matters.

2020 211 incidents
2021 176 incidents
2022 181 incidents
2023 171 incidents
2024 156 incidents
▼ 8.8% fewer incidents in 2024 vs the prior year.
Contact Agent
Robb Leece, REALTOR®
Robb Leece, REALTOR®
Graham Realty Inc. 403-478-4335 robbleece@gmail.com
Call 403-478-4335
Unlock More Data

Sign up free to see sold prices, days on market, price history and set listing alerts.

Get Free Access
Search Listings
Walden is a vibrant master-planned community in Calgary's southeast, known for its extensive lake system and resort-style living. This family-friendly neighbourhood offers a unique blend of waterfront properties, well-designed amenities, and strong community connections that make it one of Calgary's most sought-after residential areas.

AI-generated overview. Verify details independently.

Similar Properties in Walden

52 Walden Green SE
For Sale
Detached

$895,500

52 Walden Green SE

Walden, Calgary

  • 4 Beds
  • 3/1 Baths
  • 2,507 sq. ft.
254 Walgrove Terrace SE
For Sale
Detached

$600,000

254 Walgrove Terrace SE

Walden, Calgary

  • 4 Beds
  • 3/1 Baths
  • 1,819 sq. ft.
919 Walgrove Boulevard SE
For Sale
Detached

$679,900

919 Walgrove Boulevard SE

Walden, Calgary

  • 4 Beds
  • 3/1 Baths
  • 1,485 sq. ft.
102 Walden Circle SE
For Sale
Row/Townhouse

$440,000

102 Walden Circle SE

Walden, Calgary

  • 3 Beds
  • 2/1 Baths
  • 1,548 sq. ft.
181 Walcrest Boulevard
For Sale
Detached

$739,800

181 Walcrest Boulevard

Walden, Calgary

  • 5 Beds
  • 3/1 Baths
  • 1,754 sq. ft.
349 Walden Drive SE
For Sale
Row/Townhouse

$449,900

349 Walden Drive SE

Walden, Calgary

  • 3 Beds
  • 2/1 Baths
  • 1,454 sq. ft.