Overview
MLS® Number: A2214977
Type: Apartment
Bedrooms: 1
Bathrooms: 1/0
Living Area: 635 sq. ft.
Year Built: 2013
Community: Beltline
Description

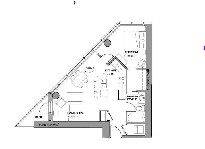
Click brochure link for more details. CALGARY TOWER VIEW, PENTHOUSE LEVEL PARKING, HIGH END, UPGRADED, GLASS FLOOR TO CEILING WRAP AROUD WINDOWS, CORNER unit (this not a typical 1 bedroom) in prestigious KEYNOTE 2 premier apartment residences, situated in the highly sought after downtown location of VICTORIA PARK and within the walk-zone to Calgary core amenities. This executive upgraded unit has the best PARKING on P1 level which will save 20-30 minutes every day to get to/from parkade while saving your car longevity not going over the parkade speed bumps and same level titled oversized storage. Unit offers exceptional privacy and tranquility compared to other buildings in downtown thanks to its ALL-CONCRETE construction, including shared walls. Its unique ALL-GLASS EXTERIOR sets it apart, making it a standout building in Calgary's skyline. The OPEN-CONCEPT LAYOUT is designed for comfort and style, this unit boasts 9' ceiling with WRAP AROUND FULL FLOOR TO CEILING WINDOWS with BLINDS at your fingertip to close/open at your convenience and enjoy spectacular views of Calgary Tower. It is well planned one bedroom walk-in/walk through closet, entrance/exit from both bedroom and bathroom, not like any other layouts and one full bath, ceiling-height kitchen with European cabinetry, GRANITE counter-tops, center island, engineered hardwood floors and “Samsung” stainless appliances. Enjoy the ease of in-suite laundry and the comfort of central AIR CONDITIONING, ensuring a perfect indoor climate year-round. This unit like no others has UPGRADES: P1/Level1 Parking right at the entrance of the parkade, oversized titled storage, “VOVO” smart toilet, smart touchless faucets in the kitchen and bathroom, rain shower, large, matte black sink in the bathroom, new modern lighting fixtures in the kitchen, living room and bathroom, “InSinkErator” Garbage Disposal, countertop soap dispenser, has professionally drilled hole in the countertop to install water filtration like Reverse Osmosis and a new “Samsung” Glass Touch LED microwave. The adjoining living room can accommodate full-size furniture and leads to the balcony where you can enjoy your morning coffee while watching the sun rise or sipping glass of wine watching lights of Calgary Tower in the evening. This air-conditioned complex has keyless main entry and a newly installed high security system. Keynote 2 boasts an array of exceptional amenities that cater to an active and social lifestyle. Stay fit in one of the 2 the state-of-the-art fitness centers or unwind in the owner's lounge complete with a large TV, pool table, kitchen and wet bar. Furnished guest suites, 24-hour security with surveillance cameras, and secured elevator access. The building also features a Plus-15 rooftop patio with outdoor space and BBQs, perfect for summer gatherings and relaxing with friends. Residents enjoy the convenience of full-time onsite management, secured elevator access, a guest room for visiting friends and family, two bike rooms.

Seller Brokerage: Honestdoor Inc.

Property Details
Size & Rooms
Rooms Above Grade4
Beds Above Grade1
Bathrooms
4-Piece1
EnsuiteNo
Construction
StyleApartment-Single Level Unit
Exterior MaterialConcrete
Stories29
New ConstructionNo
Parking & Garage
Total Parking1
FeaturesUnderground
Interior
HeatingForced Air
CoolingCentral Air
FlooringCarpet,Hardwood
LaundryIn Unit
FeaturesCloset Organizers,No Animal Home,No Smoking Home,Storage
AppliancesSee Remarks
InclusionsCall seller directly
Exterior & Lot
ExteriorNone
Patio / PorchBalcony(s)
CommunityPlayground,Schools Nearby,Shopping Nearby
Condo / Strata
BuildingKeyNote 2
Condo Fee$509/Monthly
Fee IncludesAmenities of HOA/Condo,Cable TV,Caretaker,Common Area Maintenance,Gas,Heat,Insurance,Interior Maintenance,Maintenance Grounds,Parking,Professional Management,Reserve Fund Contributions,Residential Manager,Security,Security Personnel,Sewer,Snow Removal,Trash,Water
PetsYes
Unit ExposureS
FloorOther
Entry Level1
Financial & Legal
Annual Tax$1,877 (2024)
PossessionNegotiable
ZoningDC
TitleFee Simple
RestrictionsCall Lister
Mortgage Calculator
Location
1401-225 11 Avenue SE, Beltline, Calgary, AB
Get Directions
Community Statistics
Calgary Police Service · City of Calgary Open Data

Annual disorder incidents reported in Beltline. Disorder includes noise complaints, suspicious persons, public disturbances, and similar matters.

2020 7440 incidents
2021 6616 incidents
2022 6448 incidents
2023 6508 incidents
2024 6955 incidents
▲ 6.9% more incidents in 2024 vs the prior year.
Contact Agent
Robb Leece, REALTOR®
Robb Leece, REALTOR®
Graham Realty Inc. 403-478-4335 robbleece@gmail.com
Call 403-478-4335
Unlock More Data

Sign up free to see sold prices, days on market, price history and set listing alerts.

Get Free Access
Search Listings
Beltline stands as one of Calgary's most vibrant and rapidly evolving urban neighbourhoods, perfectly positioned between downtown and the Bow River. This dynamic community offers an exciting blend of modern high-rise living, converted heritage buildings, and an incredibly walkable lifestyle that attracts young professionals and urban enthusiasts alike.

AI-generated overview. Verify details independently.

Similar Properties in Beltline

1804-210 15 Avenue SE
For Sale
Apartment

$275,000

1804-210 15 Avenue SE

Beltline, Calgary

  • 1 Beds
  • 1 Baths
  • 684 sq. ft.
3-1339 14 Avenue SW
For Sale
Row/Townhouse

$584,900

3-1339 14 Avenue SW

Beltline, Calgary

  • 2 Beds
  • 1/1 Baths
  • 1,532 sq. ft.
404-111 14 Avenue SE
For Sale
Apartment

$199,900

404-111 14 Avenue SE

Beltline, Calgary

  • 1 Beds
  • 1 Baths
  • 557 sq. ft.
1505-901 10 Avenue SW
For Sale
Apartment

$329,900

1505-901 10 Avenue SW

Beltline, Calgary

  • 1 Beds
  • 1 Baths
  • 584 sq. ft.
708-1118 12 Avenue SW
For Sale
Apartment

$370,000

708-1118 12 Avenue SW

Beltline, Calgary

  • 2 Beds
  • 2 Baths
  • 863 sq. ft.
SL5-1520 4 Street SW
For Sale
Apartment

$307,453

SL5-1520 4 Street SW

Beltline, Calgary

  • 1 Baths
  • 392 sq. ft.