Overview
MLS® Number: A2280534
Type: Semi Detached (Half Duplex)
Bedrooms: 4
Bathrooms: 4/1
Living Area: 2,653 sq. ft.
Lot Size: 2,999 Square Feet
Year Built: 2026
Community: West Hillhurst
Description

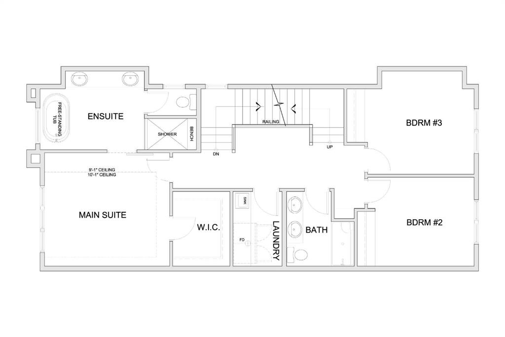
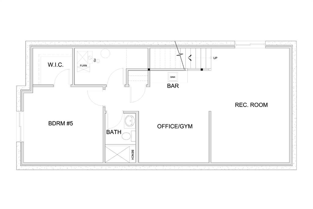
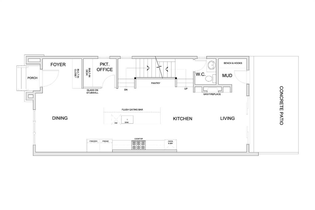
Located in WEST HILLHURST, this modern SEMI-DETACHED NON SUITED infill delivers the kind of layout and design that simply works for inner-city living. Clean architecture, generous windows, and multiple outdoor spaces set the tone and well-suited for daily life near the river, downtown, and some of Calgary’s most established amenities. A defined foyer creates a proper sense of arrival and keeps the main living areas feeling calm and composed. Just off the entry, a POCKET OFFICE with built-ins and glass detailing offers a dedicated work or study space without disrupting the flow. The main floor opens into a dedicated dining area that naturally connects to the kitchen, creating an easy rhythm for daily life. The kitchen anchors the home with a large island featuring bar seating and an integrated sink. The appliance layout is designed for real use, keeping prep and cooking zones efficient and intuitive, with a full-size side-by-side fridge/freezer, gas cooktop, and wall oven. A BUILT-IN PANTRY provides generous storage while maintaining clean sightlines. At the back of the home, the living room feels warm and inviting with a GAS FIREPLACE and expansive patio doors that open to the CONCRETE PATIO, extending the living space outdoors. A discreet powder room and a well-designed MUDROOM with BENCH AND HOOKS complete the main level. Upstairs, the second floor is dedicated to rest and privacy. The primary bedroom is a calm retreat, finished with a TRAY CEILING that adds subtle architectural interest. The ensuite includes a FREESTANDING TUB, dual sinks, and a separate shower with bench seating. Two additional bedrooms are thoughtfully positioned away from the primary and share a full bathroom with dual sinks, and the laundry room is placed right in the middle of the layout for ease. The upper loft level adds a lifestyle layer rarely found in inner-city homes. A spacious loft with a BAR and sink works as a media lounge or entertaining space, while a FLEX ROOM adapts easily as an office or guest room, complete with a private 4-pc ensuite. Outside, a TWO-TIER BALCONY offers an outdoor retreat, creating a private, elevated escape with room to relax or host w/ TV wall and FIREPIT. The fully developed basement continues the theme of flexibility and function. A large rec room is paired with a SECOND WET BAR and an OFFICE OR GYM space adapts easily to your needs. A 5th bedroom with walk-in closet and a full bath makes this level comfortable for guests or extended family. Located in WEST HILLHURST, this home is minutes from the Bow River pathway system, West Hillhurst Community Centre, and Helicopter Park. Nearby schools include West Hillhurst School, Queen Elizabeth School, and Westmount Charter School. Kensington’s shops, cafes, and services along Kensington Rd and 10 S NW are close at hand, with quick access to downtown, Foothills Medical Centre, Alberta Children’s Hospital, and Memorial Dr. A walkable, established inner-city lifestyle with everything within reach.

Seller Brokerage: RE/MAX House of Real Estate

Property Details
Size & Rooms
Below Grade853 sq. ft.
Main Level933 sq. ft.
Rooms Above Grade8
Beds Above Grade3
Beds Below Grade1
Bathrooms
5-Piece Ensuite1
4-Piece Ensuite1
3-Piece2
2-Piece1
EnsuiteYes
Construction
Style3 (or more) Storey,Attached-Side by Side
Exterior MaterialStone,Stucco
RoofAsphalt Shingle
FoundationPoured Concrete
New ConstructionYes
Parking & Garage
Garage Stalls2
Total Parking2
FeaturesDouble Garage Detached
Basement
TypeFull
DevelopmentFinished
FeaturesNone
Interior
HeatingForced Air
CoolingRough-In
Fireplaces1 — Electric
FlooringCarpet,Ceramic Tile,Hardwood
LaundryLaundry Room,See Remarks,Upper Level
FeaturesBar,Built-in Features,Double Vanity,High Ceilings,Kitchen Island,Open Floorplan,Pantry,Recessed Lighting,See Remarks,Storage,Tray Ceiling(s),Wet Bar
AppliancesBuilt-In Oven,Dishwasher,Freezer,Garage Control(s),Gas Cooktop,Microwave,Range Hood,Refrigerator
InclusionsN/A
Exterior & Lot
ExteriorOther
FencingFenced
Patio / PorchSee Remarks
Lot FeaturesOther,See Remarks
Frontage25 ft.
CommunityClubhouse,Park,Playground,Schools Nearby,Shopping Nearby,Sidewalks,Walking/Bike Paths
Financial & Legal
PossessionUpon Completion
ZoningSR
TitleFee Simple
Mortgage Calculator
Location
2716 3 Avenue NW, West Hillhurst, Calgary, AB
Get Directions
Community Statistics
Calgary Police Service · City of Calgary Open Data

Annual disorder incidents reported in West Hillhurst. Disorder includes noise complaints, suspicious persons, public disturbances, and similar matters.

2020 429 incidents
2021 380 incidents
2022 267 incidents
2023 269 incidents
2024 214 incidents
▼ 20.4% fewer incidents in 2024 vs the prior year.
Contact Agent
Robb Leece, REALTOR®
Robb Leece, REALTOR®
Graham Realty Inc. 403-478-4335 robbleece@gmail.com
Call 403-478-4335
Unlock More Data

Sign up free to see sold prices, days on market, price history and set listing alerts.

Get Free Access
Search Listings

About West Hillhurst

Full community profile
West Hillhurst is a vibrant inner-city community located just northwest of downtown Calgary, known for its tree-lined streets, diverse housing options, and strong sense of neighbourhood character. This established area combines the convenience of urban living with a welcoming residential atmosphere, making it particularly popular with young professionals, families, and long-time Calgarians who appreciate its central location and community spirit.

AI-generated overview. Verify details independently.

Similar Properties in West Hillhurst

2630 4 Avenue NW
For Sale
Semi Detached (Half Duplex)

$1,050,000

2630 4 Avenue NW

West Hillhurst, Calgary

  • 3 Beds
  • 3/1 Baths
  • 1,895 sq. ft.
2-2633 1st Avenue NW
For Sale
Row/Townhouse

$799,888

2-2633 1st Avenue NW

West Hillhurst, Calgary

  • 3 Beds
  • 3/1 Baths
  • 1,607 sq. ft.
224 18A Street NW
For Sale
Detached

$1,799,900

224 18A Street NW

West Hillhurst, Calgary

  • 5 Beds
  • 5/1 Baths
  • 2,756 sq. ft.
2219 Westmount Road NW
For Sale
Detached

$760,000

2219 Westmount Road NW

West Hillhurst, Calgary

  • 3 Beds
  • 1/2 Baths
  • 1,567 sq. ft.
201-2512 1 Avenue NW
For Sale
Apartment

$349,900

201-2512 1 Avenue NW

West Hillhurst, Calgary

  • 3 Beds
  • 2 Baths
  • 1,023 sq. ft.
1940 Broadview Road NW
For Sale
Detached

$829,900

1940 Broadview Road NW

West Hillhurst, Calgary

  • 4 Beds
  • 2/1 Baths
  • 1,690 sq. ft.