Overview
MLS® Number: A2261653
Type: Row/Townhouse
Bedrooms: 2
Bathrooms: 1/1
Living Area: 814 sq. ft.
Year Built: 2026
Community: Arbour Lake
Description

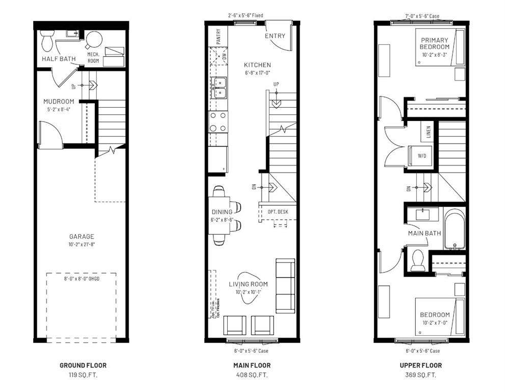
**Open House Sunday 2pm to 4pm - PLEASE GO TO THE SHOWHOME FOR ACCESS** Step into this beautifully designed, newly built 3-level townhome by Cantiro—offering the perfect blend of comfort, style, and nature. Located in the sought-after lake community of Arbour Lake, this 2-bedroom, 1.5-bath home backs directly onto peaceful green space and showcases expansive triple-paned windows that flood each level with natural light. The entry level features a welcoming mudroom, a convenient two-piece bathroom, and access to the single attached garage with an oversized overhead door. On the main floor, enjoy a bright and open layout with spacious living and dining areas and a contemporary kitchen—ideal for everyday living and entertaining. Upstairs, you’ll find two bedrooms, a full four-piece bathroom, and upper-floor laundry for added convenience. With luxury vinyl plank flooring, quartz countertops, professionally curated interior finishes, and rough-ins for both air conditioning and a BBQ gas line, this home is move-in ready and waiting for your personal touch. Enjoy low-maintenance living with exclusive access to year-round lake amenities—all in a peaceful setting that backs onto green space. ( PLEASE note* photos are of similar models but there are not an exact replication of the home).

Seller Brokerage: KIC Realty

Property Details
Size & Rooms
Rooms Above Grade5
Beds Above Grade2
Bathrooms
4-Piece1
2-Piece1
EnsuiteNo
Construction
Style3 (or more) Storey
Exterior MaterialCement Fiber Board,Mixed,Wood Frame
RoofAsphalt Shingle
FoundationPoured Concrete
New ConstructionYes
Parking & Garage
Garage Stalls1
Total Parking1
FeaturesSingle Garage Attached
Basement
TypeNone
Interior
HeatingForced Air,Natural Gas
CoolingNone
FlooringCarpet,Vinyl Plank
LaundryUpper Level
FeaturesNo Animal Home,No Smoking Home,Open Floorplan,Quartz Counters,See Remarks
AppliancesDishwasher,Electric Stove,Microwave Hood Fan,Refrigerator
InclusionsNA
Exterior & Lot
ExteriorBBQ gas line,Private Entrance
FencingNone
Patio / PorchPatio
Lot FeaturesBacks on to Park/Green Space
CommunityClubhouse,Fishing,Lake,Park,Schools Nearby,Shopping Nearby,Sidewalks,Street Lights,Tennis Court(s),Walking/Bike Paths
Condo / Strata
Condo Fee$148/Monthly
Fee IncludesCommon Area Maintenance,Insurance,Maintenance Grounds,Professional Management,Snow Removal
PetsYes
Unit ExposureSE
Entry Level1
Financial & Legal
PossessionUpon Completion
ZoningTBD
TitleFee Simple
Mortgage Calculator
Location
54 Arbour Lake Court NW, Arbour Lake, Calgary, AB
Get Directions
Community Statistics
Calgary Police Service · City of Calgary Open Data

Annual disorder incidents reported in Arbour Lake. Disorder includes noise complaints, suspicious persons, public disturbances, and similar matters.

2020 642 incidents
2021 704 incidents
2022 724 incidents
2023 896 incidents
2024 578 incidents
▼ 35.5% fewer incidents in 2024 vs the prior year.
Contact Agent
Robb Leece, REALTOR®
Robb Leece, REALTOR®
Graham Realty Inc. 403-478-4335 robbleece@gmail.com
Call 403-478-4335
Unlock More Data

Sign up free to see sold prices, days on market, price history and set listing alerts.

Get Free Access
Search Listings

About Arbour Lake

Full community profile
Arbour Lake is a picturesque northwest Calgary community that perfectly blends suburban tranquility with natural beauty, centred around its stunning man-made lake. Developed primarily in the 1990s and 2000s, this family-friendly neighbourhood is known for its strong sense of community, excellent recreational amenities, and distinctive lakefront lifestyle that sets it apart from other Calgary suburbs.

AI-generated overview. Verify details independently.

Similar Properties in Arbour Lake

203-88 Arbour Lake Road NW
For Sale
Apartment

$329,000

203-88 Arbour Lake Road NW

Arbour Lake, Calgary

  • 2 Beds
  • 2 Baths
  • 950 sq. ft.
214 Arbour Crest Road NW
For Sale
Detached

$759,900

214 Arbour Crest Road NW

Arbour Lake, Calgary

  • 4 Beds
  • 3/1 Baths
  • 1,742 sq. ft.
123 Arbour Butte Road NW
For Sale
Detached

$675,000

123 Arbour Butte Road NW

Arbour Lake, Calgary

  • 3 Beds
  • 3/1 Baths
  • 1,421 sq. ft.
1205-950 Arbour Lake Road NW
For Sale
Apartment

$329,900

1205-950 Arbour Lake Road NW

Arbour Lake, Calgary

  • 2 Beds
  • 1 Baths
  • 815 sq. ft.
2201-303 Arbour Crest Drive NW
For Sale
Apartment

$469,900

2201-303 Arbour Crest Drive NW

Arbour Lake, Calgary

  • 2 Beds
  • 2 Baths
  • 1,232 sq. ft.
302 Arbour Ridge Park NW
For Sale
Detached

$699,900

302 Arbour Ridge Park NW

Arbour Lake, Calgary

  • 3 Beds
  • 3 Baths
  • 1,449 sq. ft.