Overview
MLS® Number: A2247404
Type: Detached
Bedrooms: 4
Bathrooms: 3/1
Living Area: 1,967 sq. ft.
Lot Size: 3,125 Square Feet
Year Built: 2026
Community: Richmond
Description

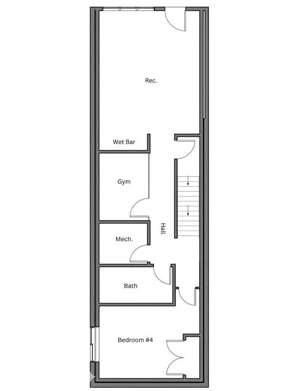
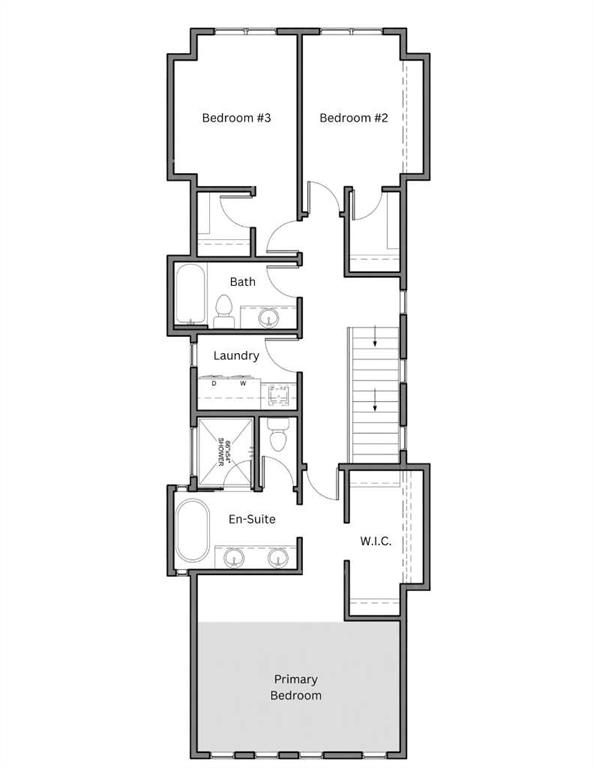
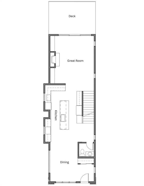
Modern luxury in the heart of Richmond. This exceptional detached two-story home offers a seamless open-concept floor plan designed for both sophisticated entertaining and comfortable family living. The main level is anchored by a gourmet chef’s kitchen featuring a massive quartz island, premium finishes, and a spacious dining area that flows into the inviting living room with a sleek gas fireplace. A convenient powder room completes this level. The upper floor is thoughtfully designed with a large laundry room and three generous bedrooms—each boasting its own private walk-in closet. The primary retreat is a true sanctuary, featuring an expansive layout and a spa-like five-piece ensuite with a deep soaker tub and double vanity. Rare for the area, this full walkout home leads to a professionally finished lower level. Enjoy a dedicated home gym, a stylish wet bar, a large recreation room, and a fourth guest bedroom. Outside, the walkout access provides a seamless transition to the backyard and the double detached garage. Experience the perfect blend of inner-city convenience and high-end craftsmanship just minutes from Marda Loop and downtown.

Seller Brokerage: eXp Realty

Property Details
Size & Rooms
Rooms Above Grade7
Beds Above Grade3
Beds Below Grade1
Bathrooms
5-Piece Ensuite1
4-Piece1
2-Piece1
EnsuiteYes
Construction
Style2 Storey
Exterior MaterialWood Frame
RoofAsphalt Shingle
FoundationPoured Concrete
New ConstructionYes
Parking & Garage
Garage Stalls2
Total Parking2
FeaturesDouble Garage Detached
Basement
TypeFull
DevelopmentFinished
FeaturesWalk Out
Interior
HeatingForced Air
CoolingRough-In
Fireplaces1 — Gas
FlooringCarpet,Hardwood,Tile
LaundryUpper Level
FeaturesBuilt-in Features,Chandelier,Closet Organizers,Double Vanity,High Ceilings,Kitchen Island,No Animal Home,No Smoking Home,Open Floorplan,Quartz Counters,Soaking Tub,Walk-In Closet(s),Wet Bar
AppliancesDishwasher,Garage Control(s),Microwave,Oven,Range Hood,Refrigerator,Stove(s)
InclusionsNone
Exterior & Lot
ExteriorOther,Private Yard
FencingFenced
Patio / PorchDeck
Lot FeaturesBack Lane,Back Yard,Front Yard,Rectangular Lot,Street Lighting
Frontage25.1 ft.
CommunityOther,Park,Playground,Schools Nearby,Shopping Nearby,Sidewalks,Street Lights,Walking/Bike Paths
Financial & Legal
ZoningR-CG
TitleFee Simple
Mortgage Calculator
Location
2232 30 Avenue SW, Richmond, Calgary, AB
Get Directions
Neighbourhood Demographics
Statistics Canada 2021 Census · Dissemination Area
$58,000
Median household income
37.2
Median age
2.30
Avg household size
Tenure — 52.60% Own  ·  47.40% Rent
How people get to work
Drive 47.30% 🚌 Transit 4.10% 🚶 Walk/Bike 5.40% 🏠 WFH 43.20%
Education — 52.30% have a bachelor's degree or higher
Community Statistics
Calgary Police Service · City of Calgary Open Data

Annual disorder incidents reported in Richmond. Disorder includes noise complaints, suspicious persons, public disturbances, and similar matters.

2020 265 incidents
2021 311 incidents
2022 209 incidents
2023 203 incidents
2024 168 incidents
▼ 17.2% fewer incidents in 2024 vs the prior year.
Contact Agent
Robb Leece, REALTOR®
Robb Leece, REALTOR®
Graham Realty Inc. 403-478-4335 robbleece@gmail.com
Call 403-478-4335
Unlock More Data

Sign up free to see sold prices, days on market, price history and set listing alerts.

Get Free Access
Search Listings
Richmond is one of Calgary's most prestigious inner-city neighbourhoods, renowned for its tree-lined streets, heritage character, and proximity to the Bow River. This established community offers an exceptional blend of historic charm and modern convenience, making it highly sought after by discerning homebuyers.

AI-generated overview. Verify details independently.

Similar Properties in Richmond

2131 31 Avenue SW
For Sale
Detached

$1,099,999

2131 31 Avenue SW

Richmond, Calgary

  • 4 Beds
  • 3/1 Baths
  • 2,152 sq. ft.
3224 24A Street SW
For Sale
Detached

$1,400,000

3224 24A Street SW

Richmond, Calgary

  • 6 Beds
  • 3 Baths
  • 1,788 sq. ft.
2516 21 Avenue SW
For Sale
Semi Detached (Half Duplex)

$1,198,000

2516 21 Avenue SW

Richmond, Calgary

  • 3 Beds
  • 2/1 Baths
  • 1,880 sq. ft.
2033 21 Avenue SW
For Sale
Detached

$890,000

2033 21 Avenue SW

Richmond, Calgary

  • 3 Beds
  • 3/1 Baths
  • 1,917 sq. ft.
2520 21 Avenue SW
For Sale
Semi Detached (Half Duplex)

$1,193,000

2520 21 Avenue SW

Richmond, Calgary

  • 3 Beds
  • 2/1 Baths
  • 1,882 sq. ft.
2314 Richmond Road SW
For Sale
Detached

$849,000

2314 Richmond Road SW

Richmond, Calgary

  • 3 Beds
  • 2 Baths
  • 1,418 sq. ft.